Villa Les Roches

Villas
Localité : Nice Type de projet : Maison individuelle
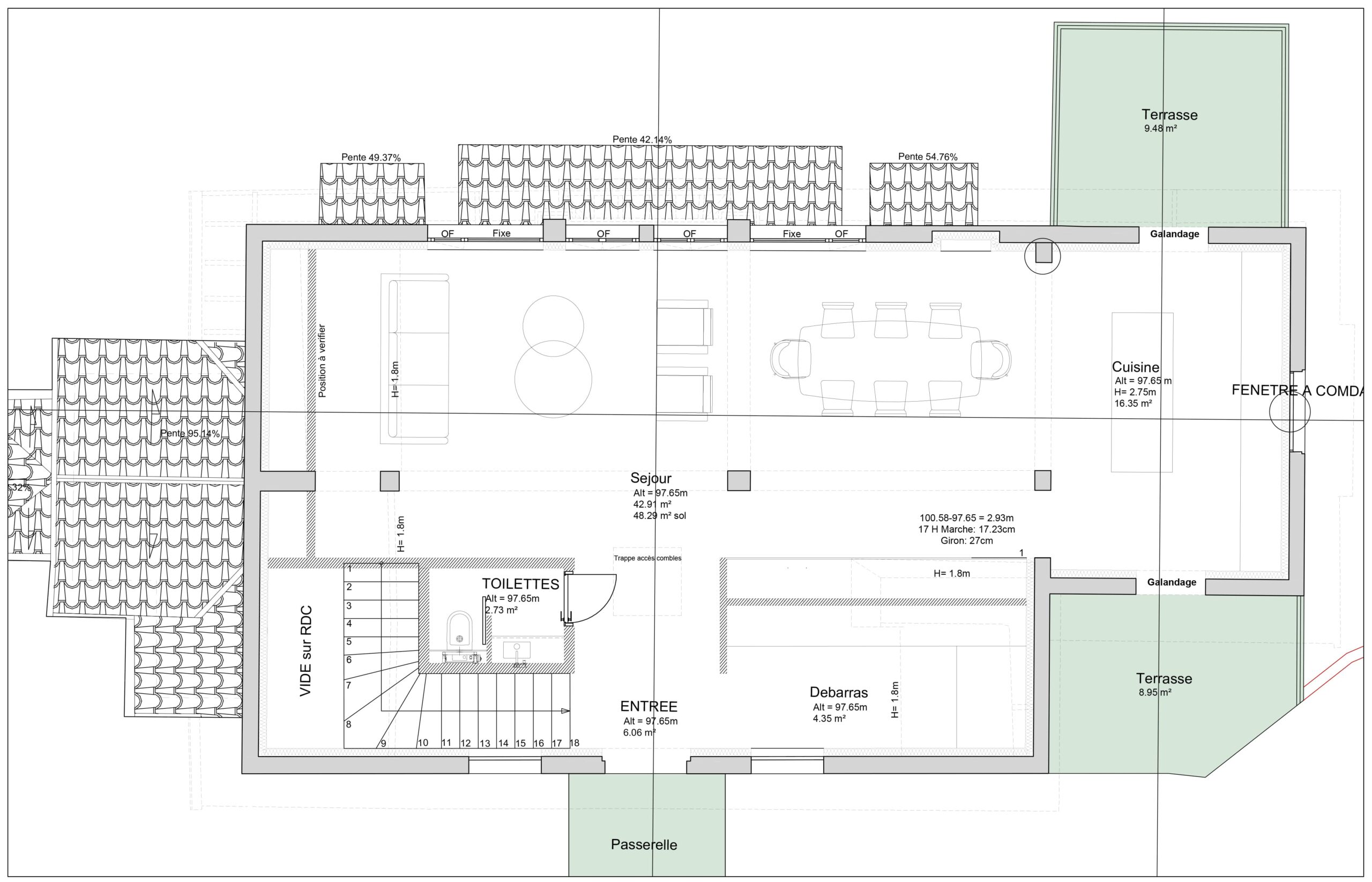
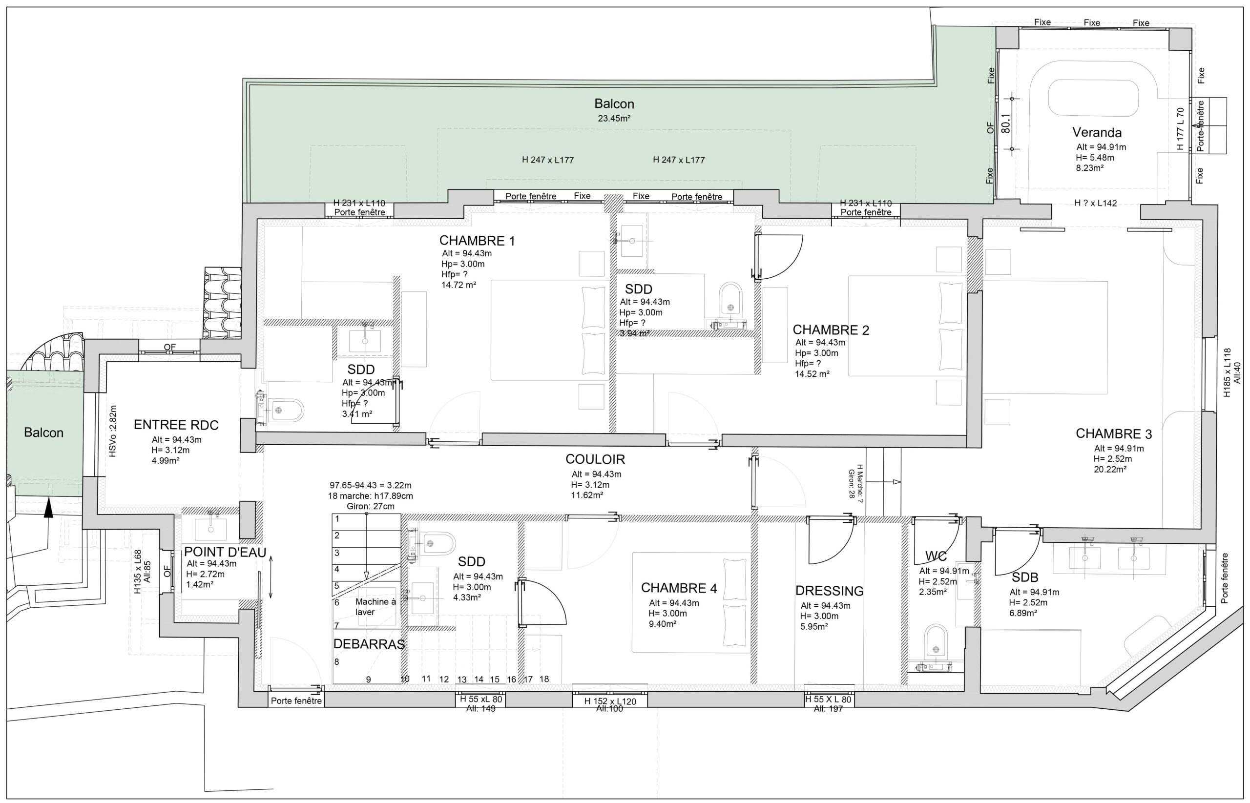
Mission : Rénovation lourde d’une maison datant de 1925, laissée à l’abandon depuis 30 ans (surface de plancher : 215 m²). Redistribution complète des espaces intérieurs sur deux niveaux, modification des façades et élaboration des dossiers administratifs liés aux transformations extérieures, incluant le déplacement de l’entrée sur la parcelle.
Plan rénovation maison à Nice
Rénovation cuisine Rivoli
Rénovation maison à l'abandon
Façade maison à rénover à Nice
Détails maison à rénover à Nice
Détails maison à rénover à Nice
Détails maison à rénover à Nice
Maison à rénover à Nice
Détails maison à rénover à Nice
Détails maison à rénover à Nice
Détails maison à rénover à Nice
Détails maison à rénover à Nice