Villa Sacha

SurélévationsVillas
Localité : La Turbie Type de projet : Maison individuelle
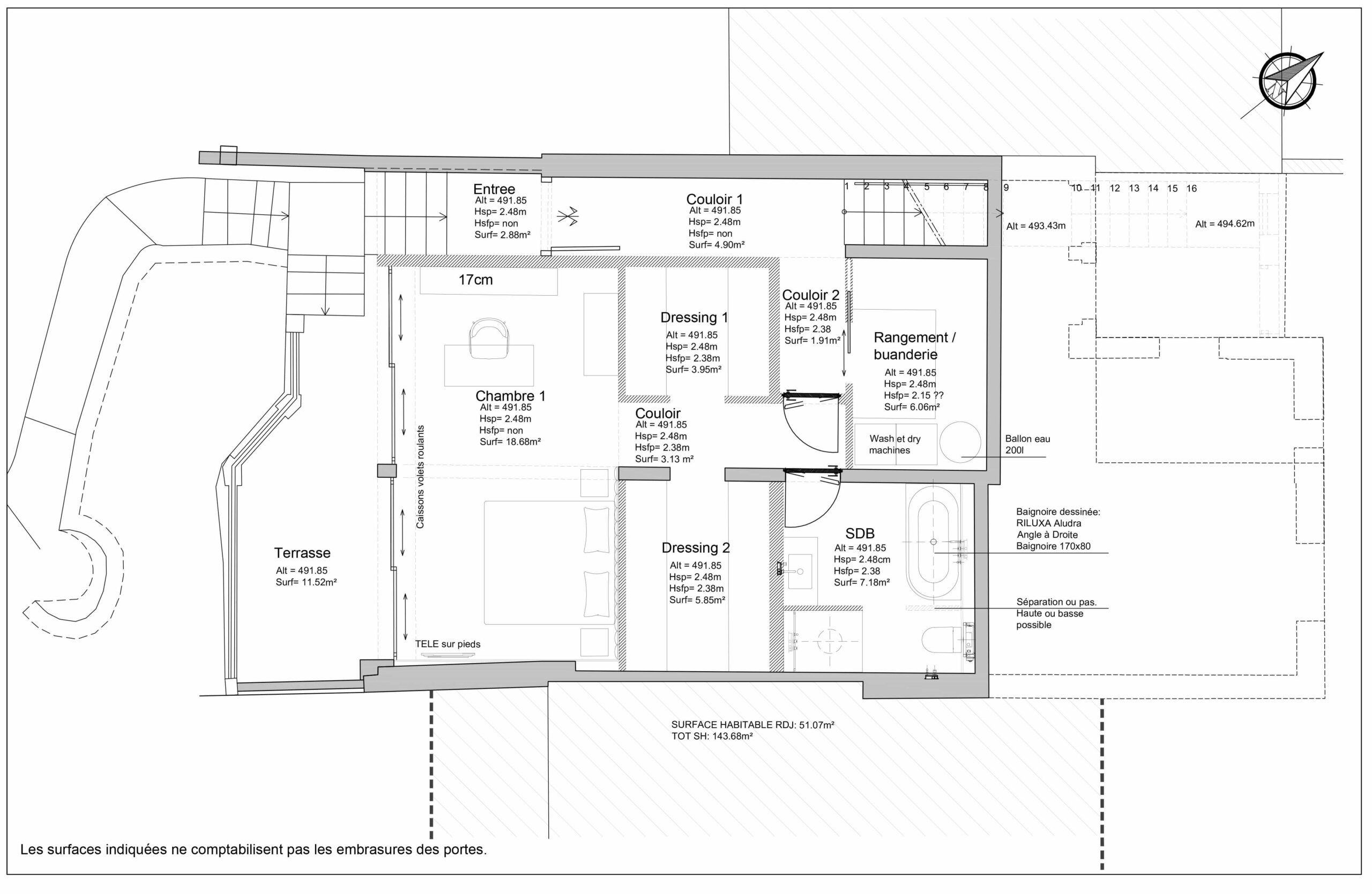
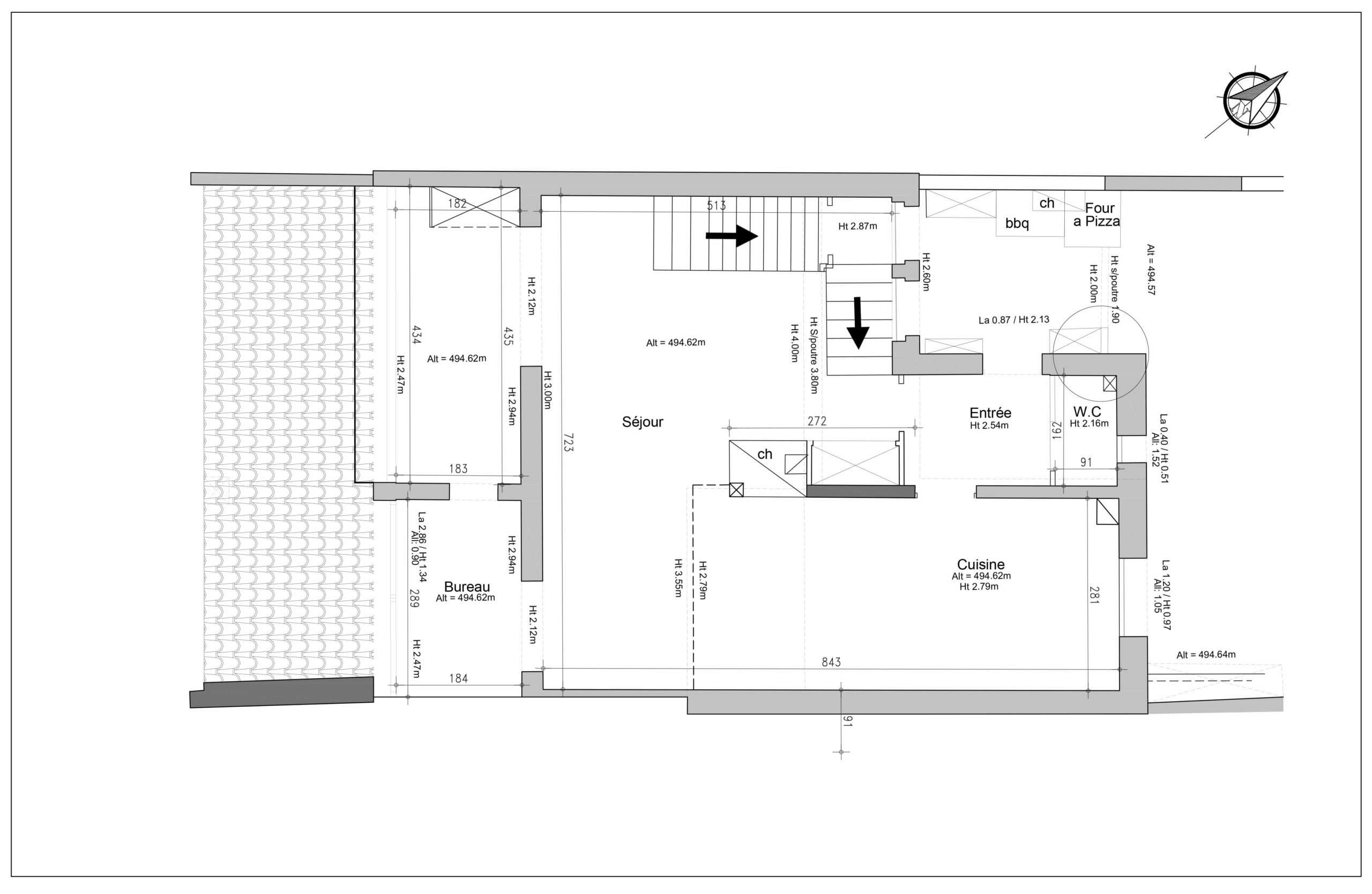
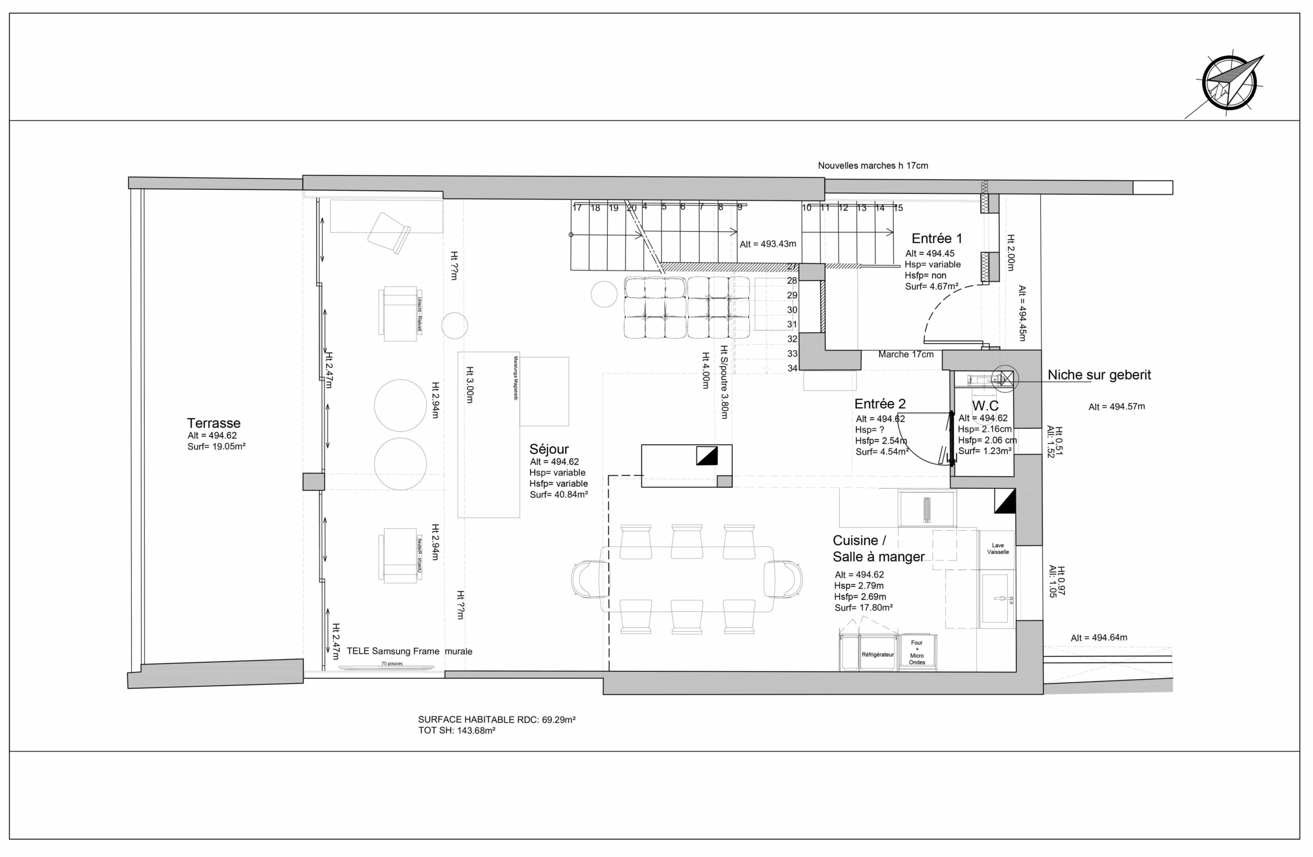
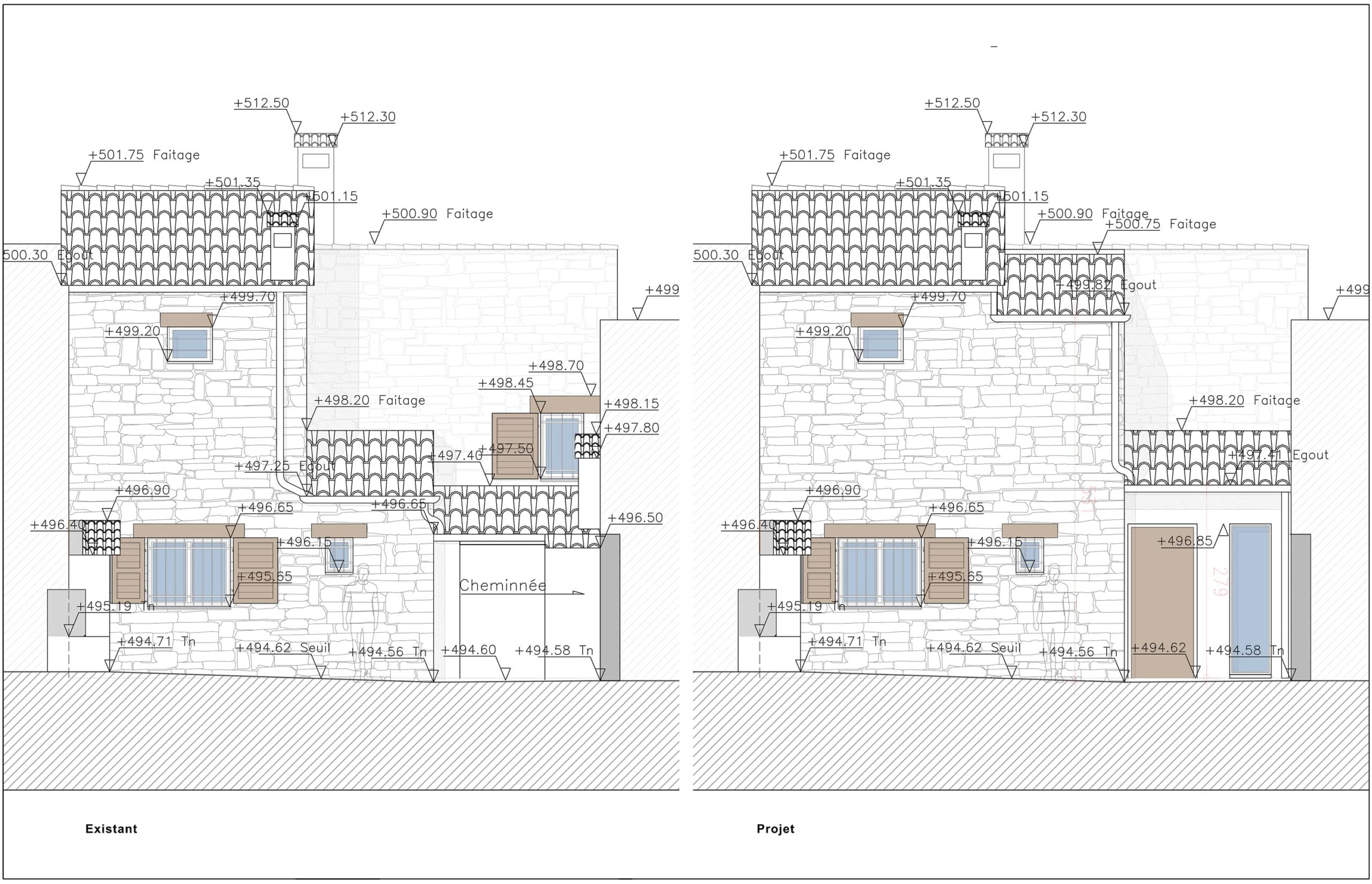
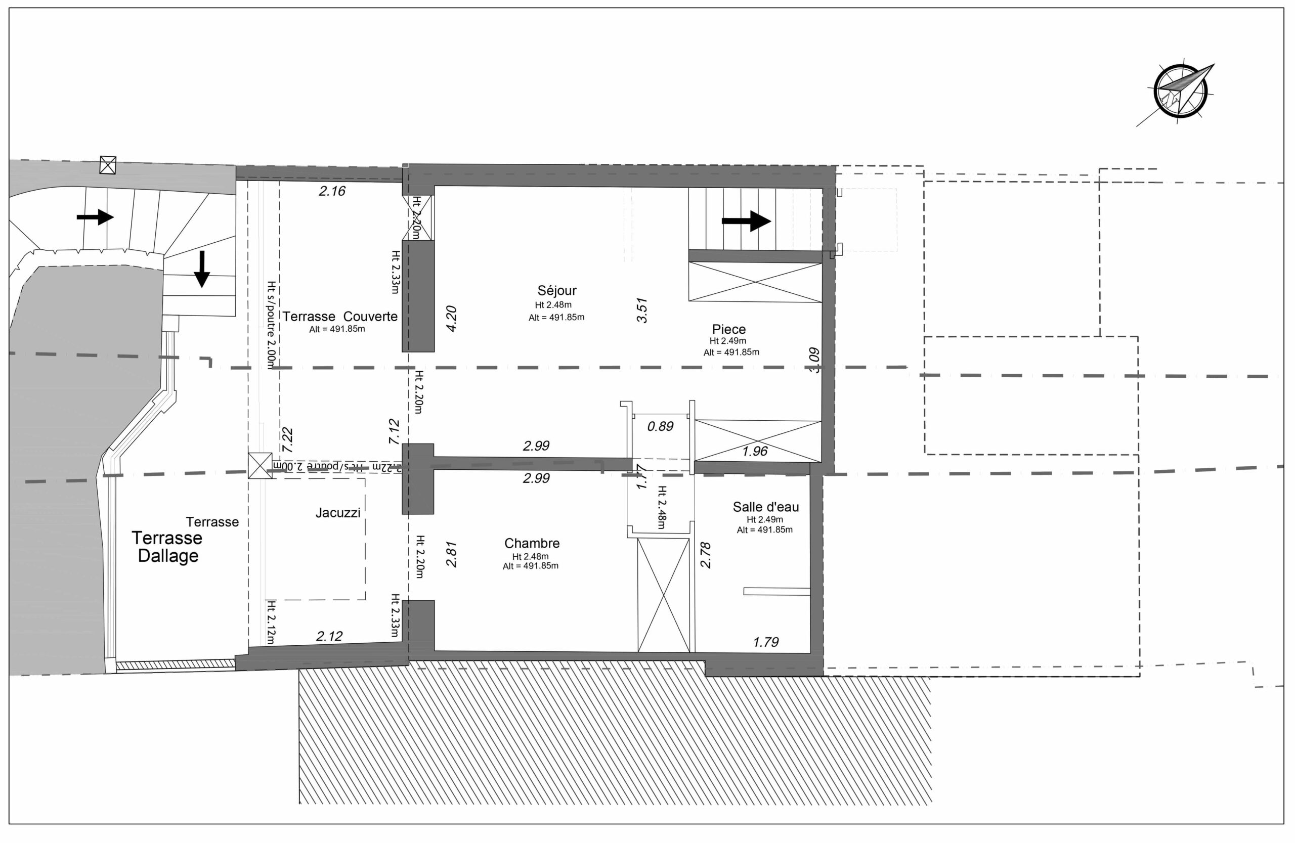
Rénovation d'une maison mitoyenne sur 3 niveaux de 145m². Surélévation d'un petit volume, transformation d'une toiture en terrasse, régularisation d'une véranda en espace habitable. Travaux structuraux importants, redistribution et aménagement des espaces de vie.

Déclaration Préalable déposée le 7/08/2024 et obtenue le 23-09-2024. En PHASE DCE. Démarrage chantier prévu en automne.
Plan rénovation maison mitoyenne
Rénovation La Turbie
Rénovation La Turbie
Rénovation La Turbie
Rénovation La Turbie
Rénovation La Turbie
Rénovation La Turbie
Rénovation maison La Turbie
Rénovation maison La Turbie
Rénovation de la maison à La Turbie
Rénovation maison à La Turbie
Maison mitoyenne La Turbie
Maison mitoyenne La Turbie
Maison mitoyenne La Turbie
Maison mitoyenne La Turbie